Herní sestava s pískovištěm - Pirátská loď žlutá
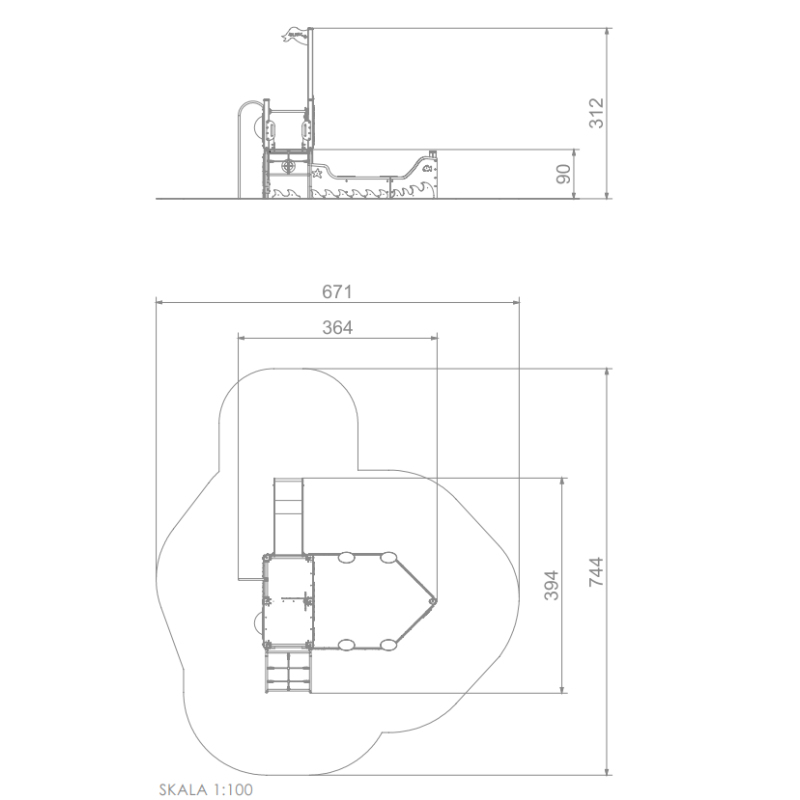
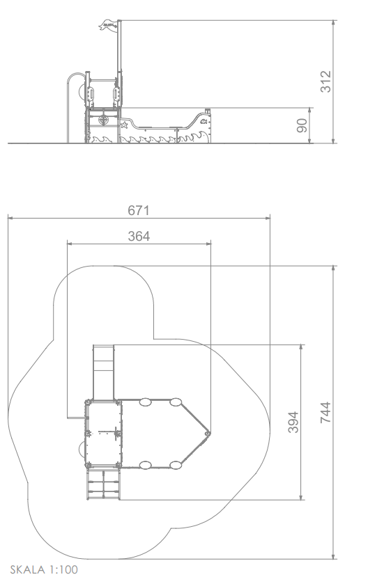
Tato kompaktní sestava se stylovou věží, skluzavkou a pískovištěm je jako stvořená pro malé námořníky. Ze skluzavky se dá pohodlně sklouznout zpět k zemi. To nejzajímavější ale čeká dole – pod věží se nachází pískoviště s prodlouženou špičkou, která jasně evokuje příď lodi. Tento tvar nejen vizuálně zaujme, ale přímo vybízí k tematické hře a fantazii.
Vhodné pro školky, menší veřejná hřiště i soukromé zahrady. Doporučeno zejména pro ty, které rády kombinují pohyb s tematickou a klidovou hrou.
Materiály a konstrukce:
Stabilní konstrukce z tlakově impregnovaného dřeva je doplněna o barevné plastové prvky – skluzavku, stříšku a bočnice. Pískoviště má výrazný trojúhelníkový výběžek v přední části a je snadno přístupné. Všechny hrany jsou zaoblené pro maximální bezpečnost.
Specifikace:
Rozměry: 394 x 394 cm
Bezpečnostní zóna: 671 x 744 cm
Plocha bezpečnostní zóny: 34 m²
Celková výška: 312 cm
Výška volného pádu: 90 cm
Počet uživatelů: 15
Výrobek splňuje normu PN-EN 1176-1:2017-12: ANO
Náhradní díly k dispozici: ANO
Věkové rozmezí: 3-12
Podle normy PN-EN 1176-1:2017-12 vyžaduje výrobek povrch tlumící nárazy vhodný pro výšku volného pádu.
Vaše hodnocení nelze odeslat
Nahlásit komentář
Zpráva odeslána
Váš podnět nelze odeslat
Napište svůj názor
Zkontrolovat před odesláním
Vaši recenzi nelze odeslat
Související produkty