Previous
Next

Kombinovaná preliezačka EKO - typ 2

SKU 00764

Robustná a bezpečná lezecká konštrukcia určená pre deti vo veku 3 až 14 rokov, ideálna pre verejné ihriská a rekreačné areály. Konštrukcia je vyrobená z odolnej ocele S235JR s práškovou povrchovou úpravou, ktorá zaisťuje dlhú životnosť a odolnosť voči poveternostným vplyvom. Lezecké steny sú vybavené protišmykovými doskami a farebnými chytmi z kombinácie kameniva a polyesterových živíc. Konštrukcia obsahuje aj pevné laná s oceľovým jadrom pre zvýšenie bezpečnosti a stability.

Zariadenie spĺňa európsku normu PN-EN 1176-1:2017-12 , čo zaručuje vysoký štandard bezpečnosti. Je určené pre až 8 detí súčasne a vďaka výške voľného pádu 189 cm vyžaduje inštaláciu tlmiaceho povrchu zodpovedajúcu norme. Konštrukcia je vhodná na každodenné intenzívne používanie a rozvoj pohybových zručností detí.

Stĺpy : Profily z čiernej ocele S235JR, práškovo lakované, o rozmere 80×80 mm.
Tyče : Vyrobené z čiernej ocele S235JR, práškovo lakované. Priemer tyče 33,7 mm.
Lezecké stenové dosky : Z protišmykovej dosky s hrúbkou 10 mm.
Lezecké chyty : Vyrobené zo zmesi kameniva a farebných polyesterových živíc.
Laná : Polypropylénové laná typu pp-multisplit s priemerom 16 mm s oceľovým jadrom.
Všetky skrutky : Vystavené poveternostným vplyvom sú vyrobené z nerezovej ocele.

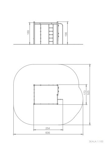
Rozmery: 173 × 254 cm
Bezpečnostná zóna: 525 × 606 cm
Plocha bezpečnostnej zóny: 27,8 m²
Celková výška: 196 cm
Výška voľného pádu: 189 cm
Počet používateľov: 8 osôb
Produkt v súlade s normou PN-EN 1176-1:2017-12: ÁNO
Dostupnosť náhradných dielov: ÁNO
Vekové rozpätie: 3–14 rokov

V súlade s normou PN-EN 1176-1:2017-12 produkt vyžaduje použitie tlmiaceho povrchu zodpovedajúceho jeho výške voľného pádu.

Dokumenty k produktu

Komentáre (0)
Na tento produkt momentálne nie je pridaná žiadna recenzia.

Podobné produkty